产城融合新样板
1388亩大型城市综合体
文昌国际航天城航天产业孵化器
文昌国际航天城起步区风范大盘


项目一期:占地328亩,规划建面约36万㎡
涵盖:喜盈门(文昌)建材家具生活广场、现代·公馆、现代城商业广场、文昌国际航天城航天产业孵化器
项目二期:占地1060亩,规划建面约100万㎡
重点打造:文昌航天超算大数据产业集群(已启动)
项目区位图

项目规划图

【一期】现代城商业广场





【二期】文昌航天超算大数据产业集群效果图



项目规划图

【一期】现代城商业广场

【一期】现代·公馆
(2019年6月30日交付)

【一期】喜盈门(文昌)建材家具生活广场
(2018年4月28日已开业)



【二期】文昌航天超算大数据产业集群效果图

【项目自带部分配套】
(已成熟运营)





【户型图】喜盈门运营商铺



【户型图】直排商铺






【户型图】中心园区商铺



【户型图】公馆底商

【户型图】现代·公馆

航天·现代城项目概况
投资商:海南现代科技集团
开发商:海南聚龙投资控股有限公司
物业管理:海南现代物业管理有限公司
总规划用地约:1388亩
总规划建筑面积约:136万㎡
【项目一期】
占地面积:约328亩
建筑面积:约36万㎡
容 积 率 :1.24
绿 化 率 :28%
停 车 位 :2330个
涵盖板块:喜盈门(文昌)建材家具生活广场、现代·公馆、现代城商业广场、文昌国际航天城航天产业孵化器
在售产品:
喜盈门商铺:建筑面积约15-60㎡
园 区 商 铺:建筑面积约43-146㎡
公 馆 底 商:建筑面积约25-193㎡
现代公馆:
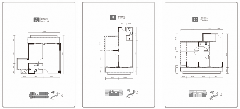
户型A:建筑面积约53-55㎡(一房)
户型B:建筑面积约61-71㎡(两房)
户型C:建筑面积约78-98㎡(三房)
【项目二期】
占地面积约:1060亩
规划建筑面积约:100万㎡
重点打造:文昌航天超算大数据产业集群(已启动)
功能定位:重大科研基础设施、院地联动平台、军民融合典范、产业优化升级加速器、区域协同创新引擎、重大科研成果诞生地
功能分区:航天超算中心、航天信息科技产业园、航天装备设计产业园、航天空间信息产业园、航天生命科学产业园、产业发展共享功能区、航天产业商务核心区、人才生活配套区
“六位一体”产业体系:
技术研发、成果转化、产业孵化、展示交易、 商务办公、人才培养
前景展望:创百亿产业、引千人才俊、造万个机会
【项目内部已运营配套】
餐饮购物:
喜盈门(文昌)建材家具生活广场
文昌海天花园酒家分店
影视娱乐:文昌中视国际影城
科普教育:航天科普馆、希尔斯幼儿园
旅游艺术:太空植物园、现代博物馆
产业孵化:文昌创客邦
【项目周边成熟配套】
商业:佳得福超市、千百汇超市、丽嘉酒店、燕园大酒店、兆壮酒店、海天花园酒家、维嘉国际大酒店、亿嘉百货等
教育:文昌中学、文昌孔子中学、文昌实验高中、文昌外国语职业学院、文昌清华附中、希尔斯幼儿园等
医疗:文昌市人民医院、文昌市中医院、文昌侨兴医院等
旅游:骑楼老街、孔庙、张云逸纪念馆、高隆湾、清澜湾、航天科普馆、八门湾红树林湿地公园、椰子大观园、东郊椰林旅游区、铜鼓岭国家旅游度假区、石头公园、冯家湾、月亮湾旅游度假区、宋氏祖居、文昌卫星发射中心等
娱乐:文昌中视国际影城、中影星美南影国际影城、中影禾盈影城、文昌演艺会议中心、宝迪KTV、星歌派对量贩KTV、明珠歌城等

项目地址:海南省文昌市文蔚路169号
全国免费热线:4008518081

